Товариство з обмеженою відповідальністю «Терра-Капітал», власником та керівником якого є помічник народного депутата України Ігоря Палиці, екскерівник його благодійного фонду Олександр Товстенюк, планує звести масштабний житловий комплекс у селі Рованці Боратинської громади, що межує з Луцьком. На території площею понад 13 гектарів хочуть збудувати п’ятнадцятиповерхівки, розраховані на 5,5 тисяч мешканців, а також облаштувати комерційні площі.
Про наміри забудовника йдеться у повідомленні про планову діяльність, яка підлягає оцінці впливу на довкілля, оприлюдненому 6 квітня 2026 року на онлайн-платформі «Екосистема».
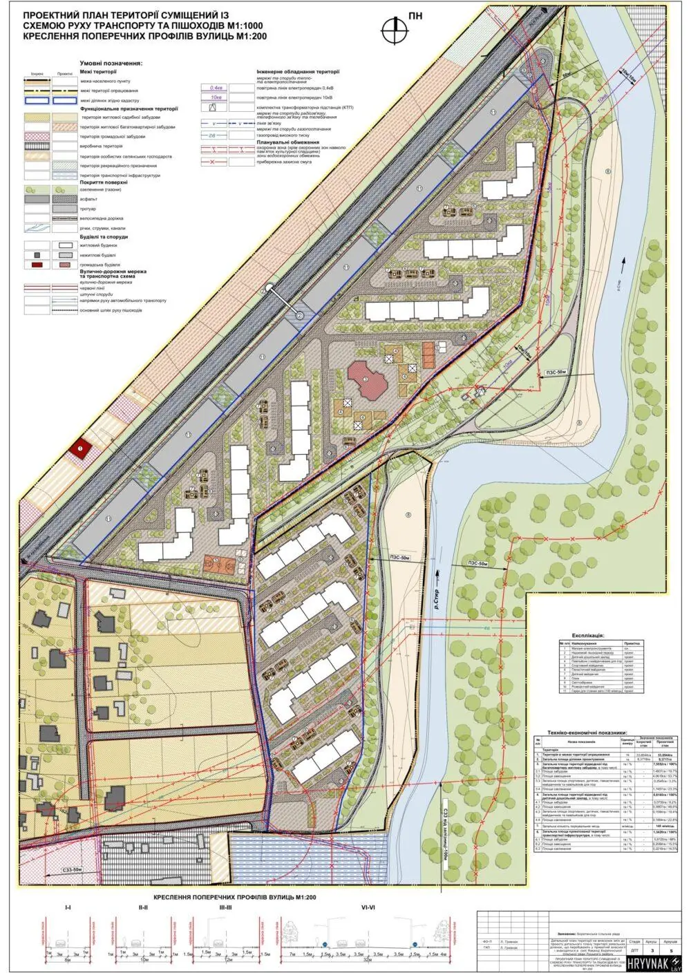
Луцька фірма «Терра-Капітал» запланувала зведення житлового комплексу на 5,5 тисяч мешканців на березі Стиру у Рованцях Луцького району.
Багатоповерхівки мають будуватися на чотирьох ділянках загальною площею понад 13,4 гектара, які належать забудовнику. Найменшою із них, площею 0,3 гектара, ще до березня 2020 року користувалося комунальне підприємство «Луцькводоканал». Згодом ділянку відвели до земель запасу Боратинської громади, а вже наприкінці жовтня 2024 року сільрада змінила її цільове призначення із земель для технічної інфраструктури на житлову забудову. Щодо ділянок площею 0,9 та 1,3 гектара, то вони входили до великого комунального масиву площею 3,5 гектара, який відводився для «облаштування пляжу та велосипедних доріжок». У жовтні 2024 року сільська рада його розділила і передала в оренду на 10 років безпосередньо ТОВ «Терра-Капітал».

Забудовник планує зведення восьми житлових черг та однієї, призначеної для офісних приміщень. Комплекс налічуватиме 2,4 тисячі квартир, житлова площа яких – понад 47,2 тисячі квадратних метрів. Висотність будинків – до 15 поверхів.
«На прибудинковій території передбачається: майданчик для відпочинку дорослого населення, майданчик для ігор дітей дошкільного віку, майданчик для занять фізкультурою, майданчик для тимчасової стоянки велосипедів, майданчик для збору твердих побутових відходів (підземний тип)», – йдеться в повідомленні забудовника.
Для автомобілів передбачено майже 1,7 тисяч місць постійного зберігання. Очікується, що у комерційних закладах комплексу працюватимуть майже 1,8 тисячі осіб. Водопостачання та водовідведення будуть централізованими.
«Терра-Капітал» також розглядає встановлення сонячних електростанцій на дахах комплексу як альтернативне джерело живлення.
Оскільки такий комплекс продукуватиме викиди в атмосферне повітря, шум, здійснюватиме навантаження на водне середовище, компанія зобов’язана пройти процедуру оцінки впливу на довкілля. Кожен, хто має зауваження та пропозиції щодо будівництва, може їх подати до управління екології та природних ресурсів Волинської облдержадміністрації. Лише після отримання позитивного висновку з оцінки впливу на довкілля та інших погоджень забудовник зможе розпочати роботи.
Актуального детального плану забудови цієї території поки немає, як розповів «Силі правди» архітектор Боратинської громади Микола Томчук. Цей документ сільрада розгляне згодом. Щоправда, на сайті сільради досі можна знайти проєкт ДПТ щодо цього масиву датований 2020 роком, на якому зображено близько 10 багатоквартирних будинків, які розділені на 38 секцій.

ТОВ «Терра-Капітал» зареєстроване у Луцьку у 2006 році. Основний вид діяльності фірми – купівля та продаж власного нерухомого майна. Статутний капітал товариства – 3,19 мільйона гривень.
Керівником та власником підприємства є 48-річний лучанин Олександр Товстенюк – колишній очільник Благодійного фонду Ігоря Палиці «Тільки разом». За даними сайту Верховної Ради України Олександр Товстенюк наразі є помічником-консультантом представника Луцька у парламенті за строковим трудовим договором на постійній основі.
За даними аналітичної системи YouControl, у 2025 році компанія, яка планує реалізувати настільки масштабний проєкт, отримала лише 36,2 тисячі гривень доходу. Станом на кінець минулого року у ній була працевлаштована одна людина. На товариство зареєстровано п’ять земельних ділянок та три об’єкти нерухомості.
Представником компанії в процедурі оцінки впливу проєкту на довкілля вказаний Євгеній Кондратенко. Він же є уповноваженою особою та представляє інтереси і пов’язаного із народними депутатами Ігорем Палицею та Степаном Івахівим ТОВ «Інтерколесо», яке зводить поблизу українсько-польського кордону сухопутний порт.
Раніше «Сила правди» писала, що під Луцьком планують автокомплекс на майже десяти гектарах.







